Submissions are now closed and the jury is ready to spotlight the designs that truly shine.
Share on Social Media

Duquesne Club

Prize(s) Honorable Mentions
Lighting Design/Product Company Stroik Lighting Design
Lead Designers Christopher Stroik, Denise Dubois
Completion Date 2018
Project Location Pittsburgh PA, USA
Entry Description

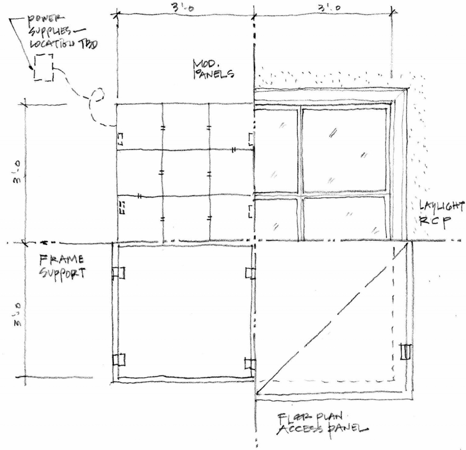
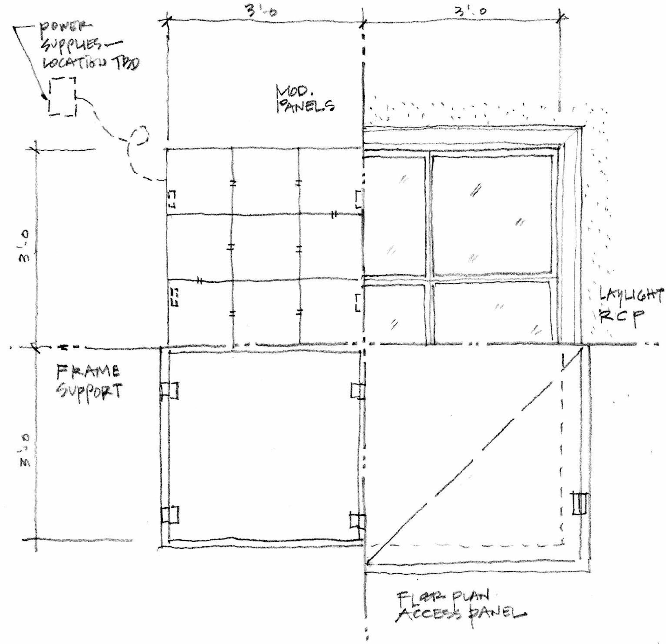
Comprised of some 10,000 SF in interior renovations of an historic 19th century infamous private urban club, appropriate architectural and artwork illumination is achieved in a sensitive and discrete manner while also ensuring that energy efficient low maintenance sources are employed. Holding an extensive art collection, the club routinely rotates their works of art and require flexible lighting systems in some areas but sought a way to minimize hardware expression, particularly given the richness of the architectural fabric. Therefore, discreet integration of select recessed lighting and wood- beam engaged valance track systems were employed to offer limited flexibility for art lighting. Newly appointed built- in casework includes integrated back illuminated glazing as well as integral display lighting. The central garden room needed a significant intervention at the high ceiling to afford appropriate and effectively expressed laylights that evoke daylight in an otherwise fully enclosed internal room, that once was open to the sky. An LED grid system above white acrylic laylights are integrated into a new articulated ceiling system. The LPD for the project was 33% less than code.
LIT Lighting Design Awards 2025
Privacy Overview

This website uses cookies so that we can provide you with the best user experience possible. Cookie information is stored in your browser and performs functions such as recognising you when you return to our website and helping our team to understand which sections of the website you find most interesting and useful.