LIT AWARDS 2026 NOW OPEN
Share on Social Media

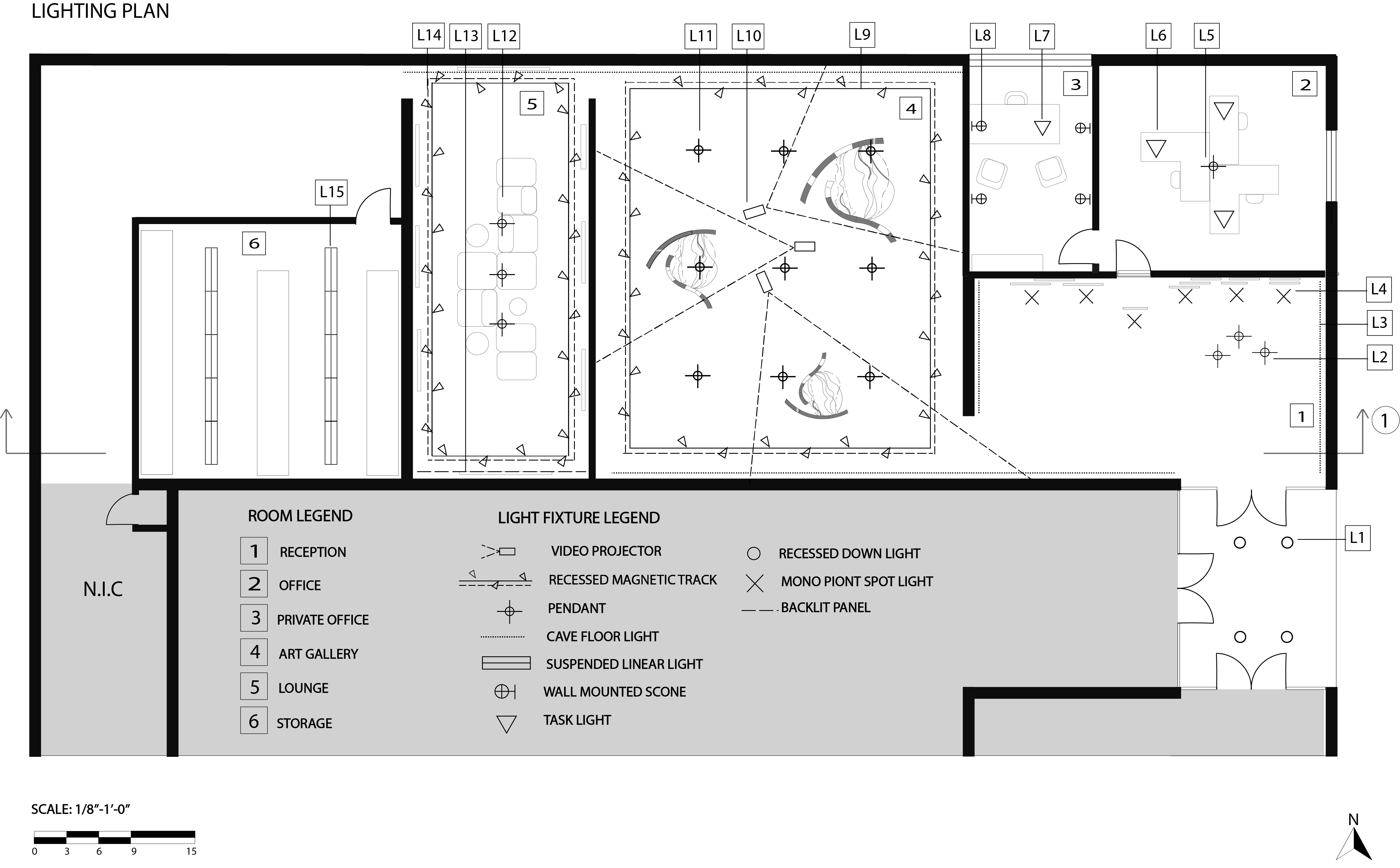
Light of Ice

Prize(s) Winners in Ambient Lighting / Visitor Experience & Museum Exhibition
University / School Name California College of the Arts
Lead Designers Anna Myasnikova
Professor Names Margo Majewska
Other Credits Margo Majewska
Completion Date 2025
Project Location San Francisco, CA
Entry Description

Light of Ice explores the poetry of light as it meets ice—reflecting, refracting, and casting unexpected shadows. Inspired by the natural behavior of light in glaciers and caves, the project transforms an art gallery into an immersive, otherworldly ice cave. Visitors move from a reception lined with illuminated panels, resembling frozen blocks, into the main gallery where the sculptural series Fire and Ice—crafted from laser-cut acrylic and heated plastics—becomes the centerpiece. These elongated, interlacing forms are dramatically lit from multiple angles with high-CRI LED projectors, creating overlapping shadows that dissolve boundaries between sculpture and space. The result is an environment that feels alive, shifting with each perspective. A secondary lounge offers contrast: a calmer space defined by a glowing backlit panels designed for pause and reflection. Together, the layers of lighting choreograph a journey—from the threshold of everyday life into a luminous, spiritual encounter with ice and fire. The design emphasizes both drama and subtlety, balancing bold immersive effects with contemplative quietness, while integrating sustainable lighting strategies through efficient LEDs and thoughtful color temperature control.
LIT Lighting Design Awards 2026
Privacy Overview

This website uses cookies so that we can provide you with the best user experience possible. Cookie information is stored in your browser and performs functions such as recognising you when you return to our website and helping our team to understand which sections of the website you find most interesting and useful.