LIT AWARDS 2026 NOW OPEN
Share on Social Media

Private Residence

Prize(s) Honorable Mentions
Lighting Design/Product Company Hartranft Lighting Design
Lead Designers Paula Ziegenbein
Other Designer's names Andrea Hartranft
Client confidential
Photo Credits Anice Hoachlander
Other Credits Wiedemann Architects
Completion Date 1/2022
Project Location Bethesda, MD
Company Link View
Entry Description

An extensive collection of Japanese art, for invitation only viewing, was seamlessly combined with a beautifully appointed private residence.
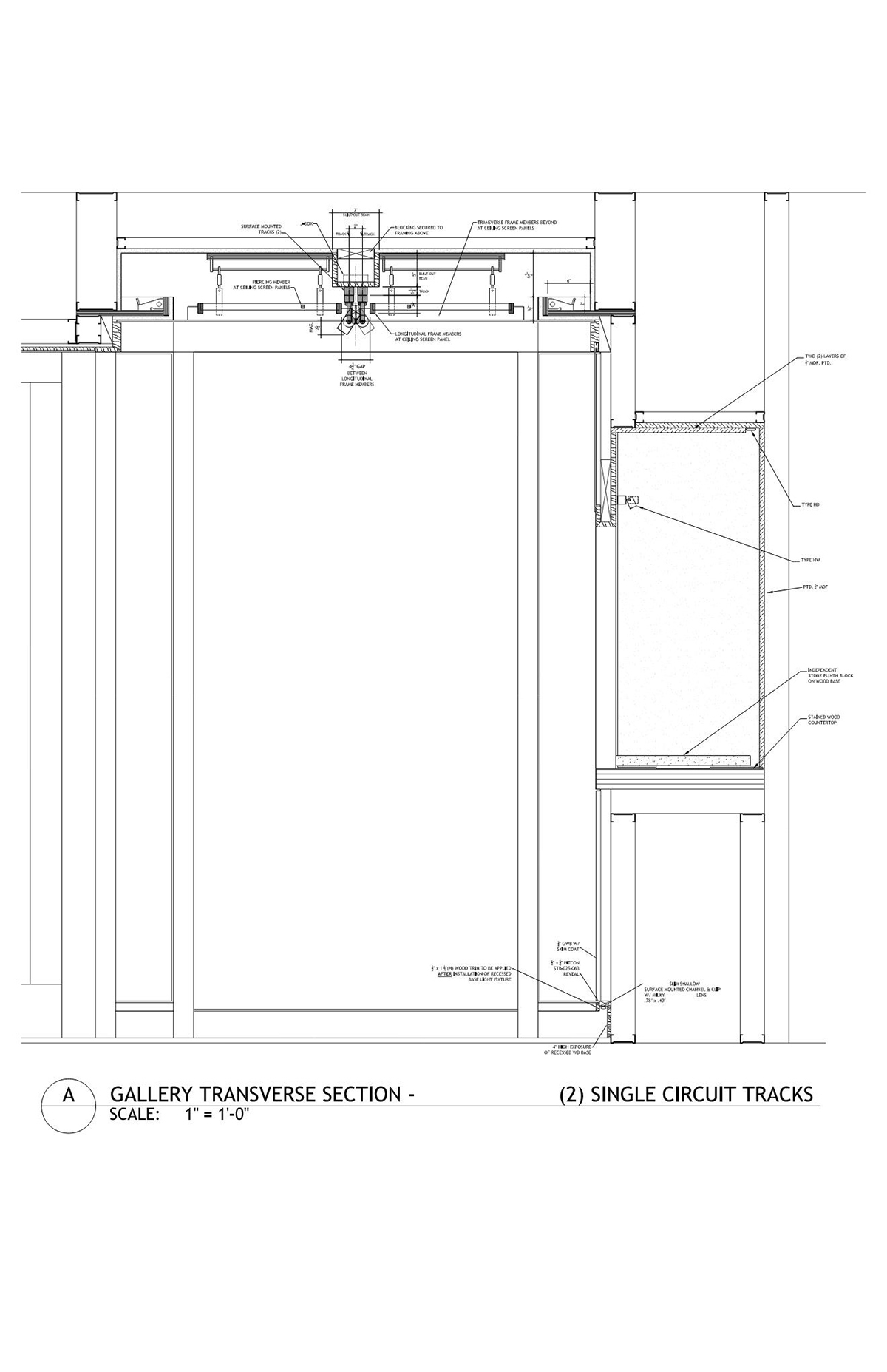
Layers of light, controlled locally and wirelessly, create a constantly changing environment for constantly changing art. The distinctive gallery ceiling, reminiscent of traditional shoji screens, required exacting integration of back-lighting and diffusion with minimalist track heads highlighting wall mounted art. Galleries required careful selection, placement and control of museum grade LED luminaires to illuminate, while preserving, mixed media collections of hand-painted silk scrolls, gilded wood panels, antique Buddha sculptures, Japanese ceramics and artifacts in the owner’s frequently rotated collection.
Residential lighting supports the owners’ (who are seniors) visibility needs while elegantly connecting private dwelling areas to galleries and entertaining spaces. The clients’ preference to personally maintain the lighting, and the constant rotation of exhibits required development of a “recipe book” of optics, beam shapes and diffusion.
Sustainability Approach

100% LED luminaires are long life and energy-efficient; eliminating lamp replacement and facilitating operating cost savings. A lighting control system including wireless touchscreen tablets & hard-wired wall stations was programmed with preset lighting scenes making it simple to use. Accessibility is addressed with a timeclock based nighttime scene illuminates circulation paths with low-level, warm-dim LED toe-kick and step lighting for those late-night snack visits to the kitchen. Jamb switches and sensors automatically turn on task lighting.
LIT Lighting Design Awards 2026
Privacy Overview

This website uses cookies so that we can provide you with the best user experience possible. Cookie information is stored in your browser and performs functions such as recognising you when you return to our website and helping our team to understand which sections of the website you find most interesting and useful.